APARTAMENTO. Amaseno, Via Cavour.

  • €60.000,00
Via Cavour, Amaseno
Vendita Open House

APARTAMENTO. Amaseno, Via Cavour.

Via Cavour, Amaseno
  • €60.000,00

Panoramica

ID della proprietà: HZAM02
  • Appartamento, Case
  • Tipo di proprietà
  • 2
  • Camere da letto
  • 1
  • Bagno
  • 75
  • MQ

Descrizione

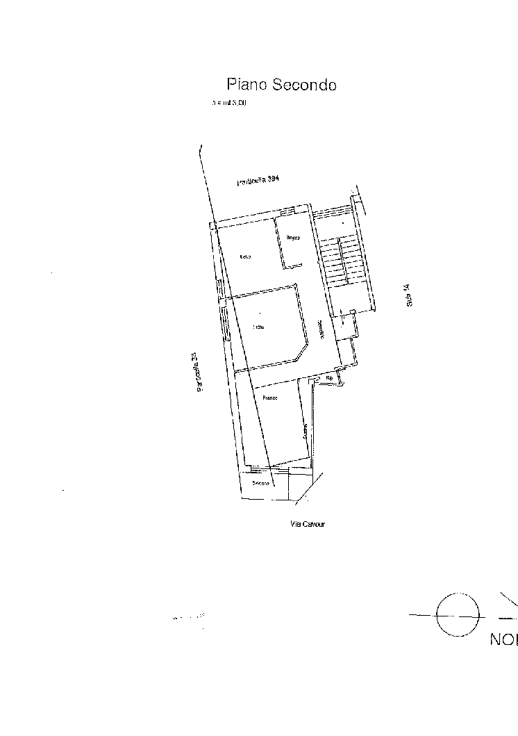
RIF. AM02 AMASENO, Via Cavour.

Nel cuore della Citta’, vicino ai servizi raggiungibili anche a piedi, con affaccio diretto sul campanile di Santa Maria e ad un passo da Piazza della Vittoria, vendiamo panoramico e luminosissimo appartamento al SECONDO PIANO di una palazzina senza ascensore.
L’immobile di circa 75MQ oltre 4MQ di balconi in buono stato è cosi’ composto:
ampio disimpegno, grande zona giorno con angolo cottura direttamente affacciato al comodo balcone, ripostiglio, corridoio, 2 grandi camere da letto ed 1 WC con doccia.
L’appartamento è termoautonomo e dotato di termosifoni in ghisa, i serramenti sono in legno ed i pavimenti in gres.
Inoltre, a pochi passi, sono presenti posto auto liberi dove poter parcheggiare.
Il punto forte di questa casa è la vista mozzafiato che si affaccia su tutta la zona!
Un’occasione da non perdere, soprattutto se si ama il Centro e la privacy!

Prezzo richiesto: €60.000, 00
Classe energetica “G”

Possibilita’ di acquistare un garage al PS1 dello stesso stabile di circa 16MQ + 35MQ di rimessa ad €16.000, 00 con accesso diretto anche dall’interno, oppure un garage di circa 22MQ ad €7.000, 00

  • Indirizzo Via Cavour, 2
  • Città Amaseno
  • Regione Lazio
  • Codice postale 03010
  • Area Centro
  • Provincia Frosinone

Dettagli

Updated on Luglio 10, 2025 at 9:54 am
  • ID della proprietà: HZAM02
  • Prezzo: €60.000,00
  • Misura della proprietà: 75 MQ
  • Camere da letto: 2
  • Stanza: 1
  • Bagno: 1
  • Tipo di proprietà : Appartamento, Case
  • Stato della proprietà: Vendita

Classe energetica

  • Classe energetica: G
  • Indice globale delle prestazioni energetiche:
  • A+
  • A
  • B
  • C
  • D
  • E
  • F
  • | Classe energetica G
    G
  • H

Informazioni di contatto

Visualizza elenchi
Luigi Stellato
  • Luigi Stellato

Richiedi informazioni su questa proprietà

Annunci simili

Compare listings

Compare
Luigi Stellato
  • Luigi Stellato