APPARTAMENTO. Ceccano, Viale Fabrateria Vetus.

  • €125.000,00
In primo piano Vendita Open House
Via Fabrateria Vetus, Ceccano, Frosinone, Lazio, 03023, Italia
In primo piano Vendita Open House

APPARTAMENTO. Ceccano, Viale Fabrateria Vetus.

Via Fabrateria Vetus, Ceccano, Frosinone, Lazio, 03023, Italia
  • €125.000,00

Panoramica

ID della proprietà: HZCE00197
  • Appartamento, Condominio, Case
  • Tipo di proprietà
  • 2
  • Camere da letto
  • 2
  • Bagni
  • 1
  • Garage
  • 96
  • MQ

Descrizione

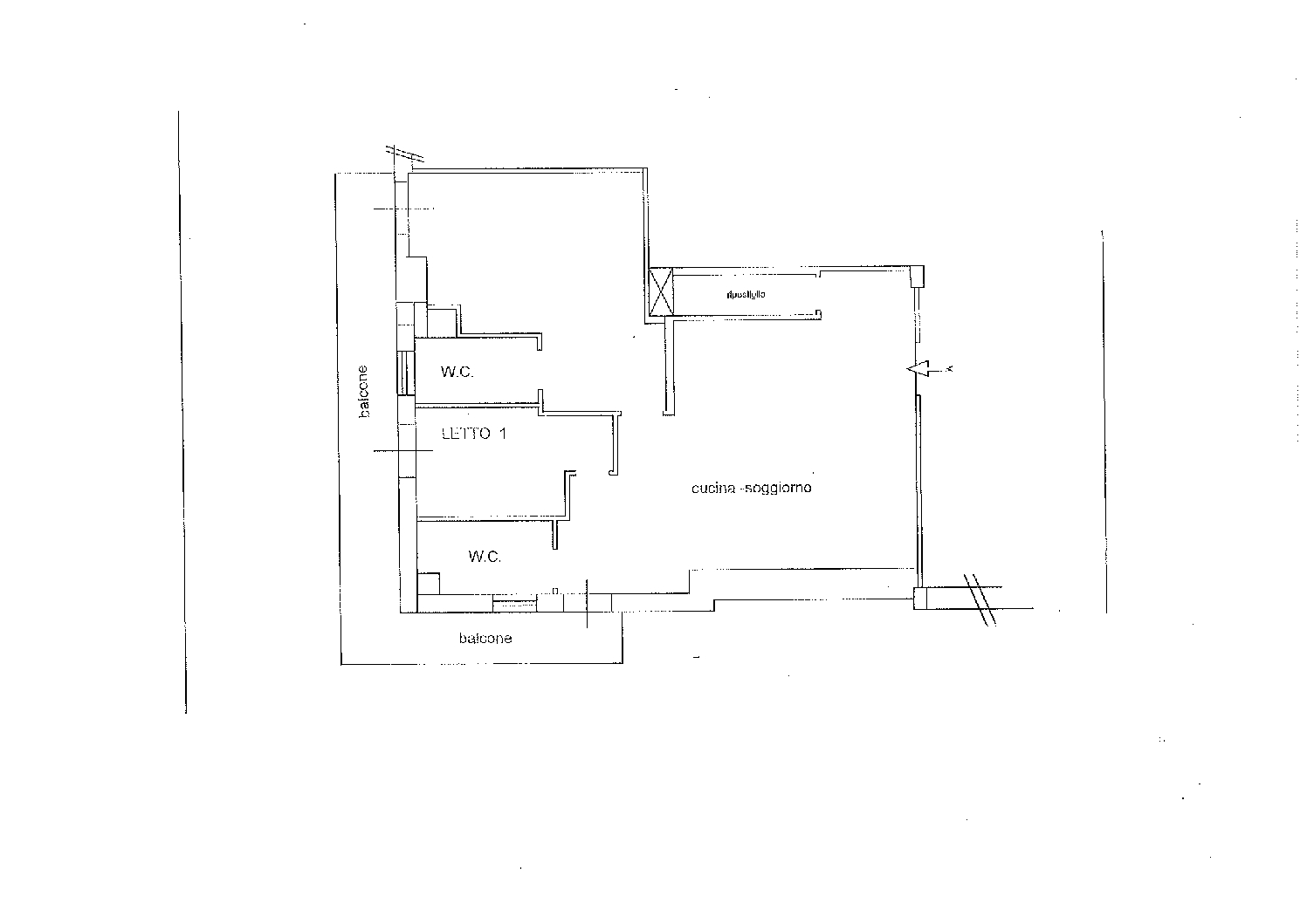
RIF. CE00197 CECCANO. Via Fabrateria Vetus.

In zona alta e molto servita, con supermercati, scuole, farmacia e vicinissima al centro Città, raggiungibile anche a piedi, proponiamo in vendita grande e comodo appartamento al PIANO TERRA di una palazzina di 3 piani totali.

L’immobile di circa 96MQ, oltre circa 20MQ di balcone angolare sul quale si affacciano tutti gli ambienti, è in buono stato conservativo, quindi abitabile anche da subito, ed è cosi’ composto:

-grande sala con angolo cottura ed A/C, comoda stanza ripostiglio, 1 WC con vasca, 1 cameretta, 1 grande camera da letto padronale con WC interno, anch’esso con doccia.

Le finestre sono tutte in legno e doppi vetri e corredate di zanzariere, il portone è blindato, è presente il videocitofono e i termosifoni sono in alluminio con alimentazione autonoma a gas.

Inoltre, a completare l’immobile, per la comodità di chi lo abita, è annesso un comodo GARAGE di circa 24MQ ed un ripostiglio/cantina di circa 6MQ.

Un appartamento da non farsi scappare!!!

Classe energetica “G”

PREZZO: Euro 125.000, 00.

  • Indirizzo Via Fabrateria Vetus, 5
  • Città Ceccano
  • Regione Lazio
  • Codice postale 03023
  • Area Centro
  • Provincia Frosinone

Dettagli

Updated on Ottobre 14, 2025 at 11:38 am
  • ID della proprietà: HZCE00197
  • Prezzo: €125.000,00
  • Misura della proprietà: 96 MQ
  • Camere da letto: 2
  • Stanza: 1
  • Bagni: 2
  • Garage: 1
  • Misura del garage: 24
  • Tipo di proprietà : Appartamento, Condominio, Case
  • Stato della proprietà: Vendita

Classe energetica

  • Classe energetica: G
  • Indice globale delle prestazioni energetiche:
  • A+
  • A
  • B
  • C
  • D
  • E
  • F
  • | Classe energetica G
    G
  • H

Informazioni di contatto

Visualizza elenchi
Luigi Stellato
  • Luigi Stellato

Richiedi informazioni su questa proprietà

Annunci simili

Compare listings

Compare
Luigi Stellato
  • Luigi Stellato