APPARTAMENTO INDIPENDENTE. Ceccano, Via Madonna della Pace.

  • €60.000,00
In primo piano Vendita Open House
Via Madonna della Pace, Ceccano, Frosinone, Lazio, 03023, Italia
In primo piano Vendita Open House

APPARTAMENTO INDIPENDENTE. Ceccano, Via Madonna della Pace.

Via Madonna della Pace, Ceccano, Frosinone, Lazio, 03023, Italia
  • €60.000,00

Panoramica

ID della proprietà: HZCE00188
  • Appartamento, Case
  • Tipo di proprietà
  • 5
  • Camere da letto
  • 2
  • Bagni
  • 120
  • MQ

Descrizione

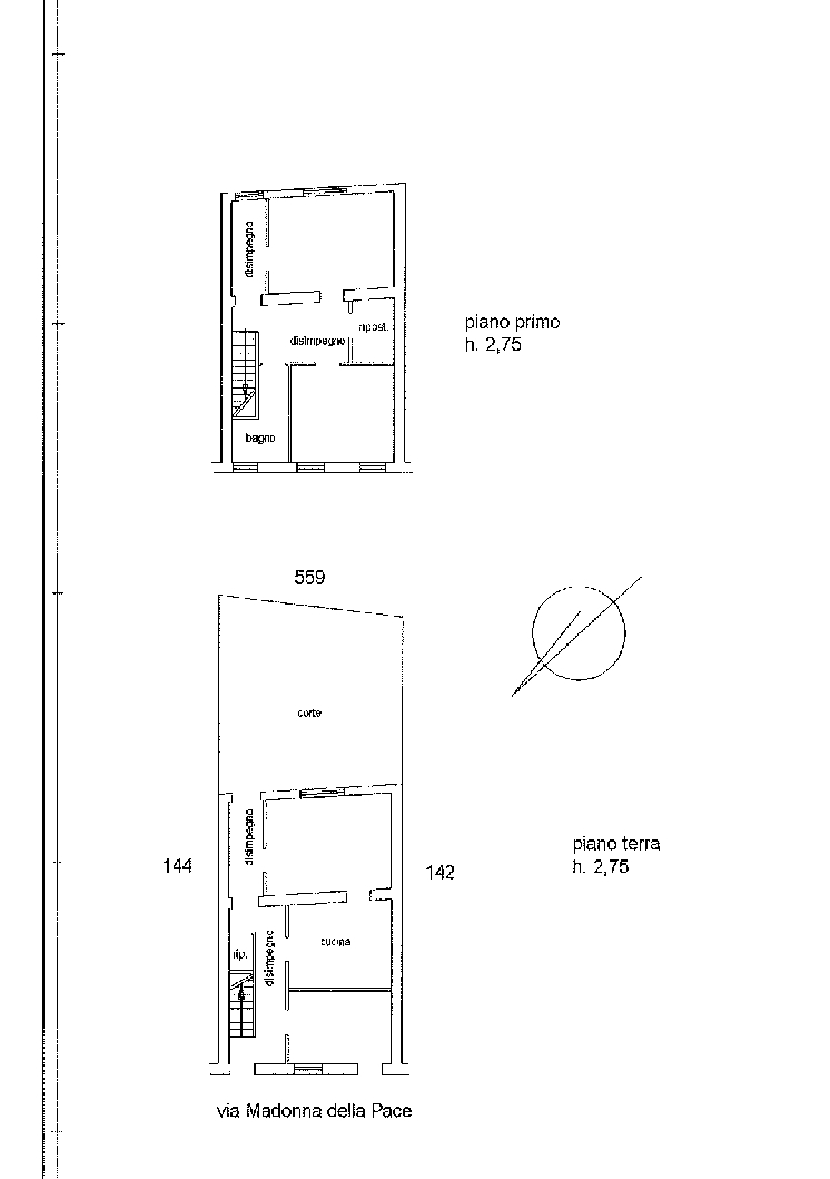
RIF. CE00188 CECCANO. Via Madonna della Pace.

Nel cuore della Citta’, vicino ai servizi raggiungibili anche a piedi, vendiamo grazioso appartamento sviluppato su 2 livelli oltre balcone e corte privata.

L’immobile è da ristrutturare e si presenta attualmente cosi’ composto:

  • PT di circa 60MQ con ampia zona giorno ed angolo cottura, lungo corridoio con sottoscala, 1 cameretta, 1 camera da letto con WC privato con doccia e dalla quale si esce sulla corte esclusiva di circa 40MQ dove troviamo anche la caldaia ed una comoda vaschetta per lavare i panni;
  • P1 di circa 60MQ raggiungibile tramite una scala interna, dove troviamo 4 ambienti, di cui uno balconato ed 1 WC con vasca.

La comodità di questo immobile è caratterizzata dalla doppia entrata che permette ai due livelli di essere indipendenti.

Inoltre al PT le finestre, le persiane e le zanzariere sono nuove e in tutta la casa i radiatori sono in ghisa.

Un’occasione da non perdere, soprattutto se si ama il Centro e la comodità!!!

Prezzo richiesto: €60.000,00

Classe energetica “G”

  • Indirizzo Via Madonna della Pace,89
  • Città Ceccano
  • Regione Lazio
  • Codice postale 03023
  • Area Centro
  • Provincia Frosinone

Dettagli

Updated on Novembre 25, 2025 at 10:40 am
  • ID della proprietà: HZCE00188
  • Prezzo: €60.000,00
  • Misura della proprietà: 120 MQ
  • Camere da letto: 5
  • Stanza: 1
  • Bagni: 2
  • Tipo di proprietà : Appartamento, Case
  • Stato della proprietà: Vendita

Classe energetica

  • Classe energetica: G
  • Indice globale delle prestazioni energetiche:
  • A+
  • A
  • B
  • C
  • D
  • E
  • F
  • | Classe energetica G
    G
  • H

Informazioni di contatto

Visualizza elenchi
Luigi Stellato
  • Luigi Stellato

Richiedi informazioni su questa proprietà

Annunci simili

Compare listings

Compare
Luigi Stellato
  • Luigi Stellato