APPARTAMENTO. Via Magenta.

  • €170.000,00
In primo piano Vendita Open House
Via Magenta, Ceccano, Frosinone, Lazio, 03023, Italia
In primo piano Vendita Open House

APPARTAMENTO. Via Magenta.

Via Magenta, Ceccano, Frosinone, Lazio, 03023, Italia
  • €170.000,00

Panoramica

ID della proprietà: HZCE00196
  • Appartamento, Case
  • Tipo di proprietà
  • 2
  • Bagni
  • 170
  • MQ

Descrizione

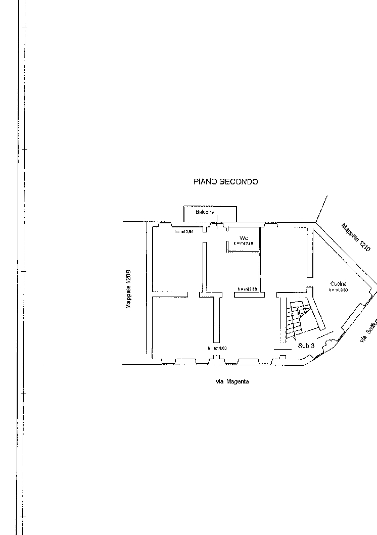
RIF. CE00196 CECCANO. Via Magenta.

Nel cuore della Città, ad un passo da scuole, supermercati, farmacie e dalla piazza del mercato e dal centro, in posizione assolatissima, proponiamo in vendita un signorile appartamento in via di ristrutturazione, posto al secondo piano di una palazzina molto elegante.

Attualmente i pavimenti sono allo stato grezzo, il tetto è stato recentemente rifatto, le finestre sono state completamente cambiate e sono in pvc e doppia camera d’aria, il portone è blindato, le persiane in legno e c’è il videocitofono.

L’attuale composizione comprende: 4 ambienti ed un balconcino per un totale di circa 170MQ. Inoltre, è possibile sfruttare il sottotetto aggiungendo una scala interna e completando l’ambiente principale con un bellissimo soppalco!!!

Un sogno da realizzare con la massima personalizzazione!!!

Prezzo richiesto: €170.000,00

Classe energetica IN CORSO

  • Indirizzo Via Magenta, 58
  • Città Ceccano
  • Regione Lazio
  • Codice postale 03023
  • Area Centro
  • Provincia Frosinone

Dettagli

Updated on Novembre 25, 2025 at 10:24 am
  • ID della proprietà: HZCE00196
  • Prezzo: €170.000,00
  • Misura della proprietà: 170 MQ
  • Stanze: 4
  • Bagni: 2
  • Tipo di proprietà : Appartamento, Case
  • Stato della proprietà: Vendita

Informazioni di contatto

Visualizza elenchi
Luigi Stellato
  • Luigi Stellato

Richiedi informazioni su questa proprietà

Annunci simili

Compare listings

Compare
Luigi Stellato
  • Luigi Stellato